Komfortabel wohnen
Palazzuolo bietet mit ca. 600 qm auf drei Stockwerken Platz für entspanntes Wohnen und kreatives Arbeiten.
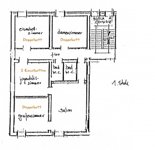
In jedem Stockwerk finden sich Gemeinschaftsräume, Bäder sowie individuell gestaltete und eingerichtete Gästezimmer.
Im 1. Stock, dem piano nobile, schmücken Fresken aus dem 19. und 20. Jahrhundert die Zimmerdecken und teilweise auch die Wände. Im 2. Stock hingegen sind alle Wände farblich gestaltet und alle Decken aus Sichtmauerwerk, d. h. man sieht die jahrhundertalte Deckenkonstruktion mit Holzbalken und Terracotta-Ziegeln. Die alten Stein- und Terracottafußböden im ganzen Haus sind wunderbar zum barfuß laufen.
Das Mobiliar ist eine gelungene Mischung aus altem Bestand, der schon von der Grafenfamilie genutzt wurde, ergänzt durch interessante Fundstücke vom Flohmarkt und modernen zeitlosen Elementen.
Die Küche ist mit allem ausgestattet, was Köche brauchen – also mehr, als man gewöhnlich in Ferienhäusern vorfindet :) Ein Gasherd mit Elektrobackofen und eine Kühl-Gefrier-Kombination gehören natürlich dazu. Eeine Spülmaschine erleichtert die Küchenarbeit.
Stromversorgung im ganzen Haus nach italienischem Standard – Steckdosenadapter sind also immer praktisch.
Alle Bäder sind funktional eingerichtet und mit Badewannen ausgestattet, fließend Heißwasser ist selbstverständlich.
Kissen und Bettdecken sind vorhanden. Bettwäsche sowie Handtücher können gegen eine Nutzungsgebühr gestellt werden.
Mit den Gartentischen und -stühlen lassen sich mehrere Arbeits- und/oder Essplätze im Grünen einrichten. Ein paar Liegestühle und eine Hängematte sorgen für entspannte Stunden.
Atelierausstattung bitte individuell anfragen.


